2019.04.25
ゴールデンウィークまでカウントダウンの今日この頃。
皆様いかがお過ごしでしょうか?
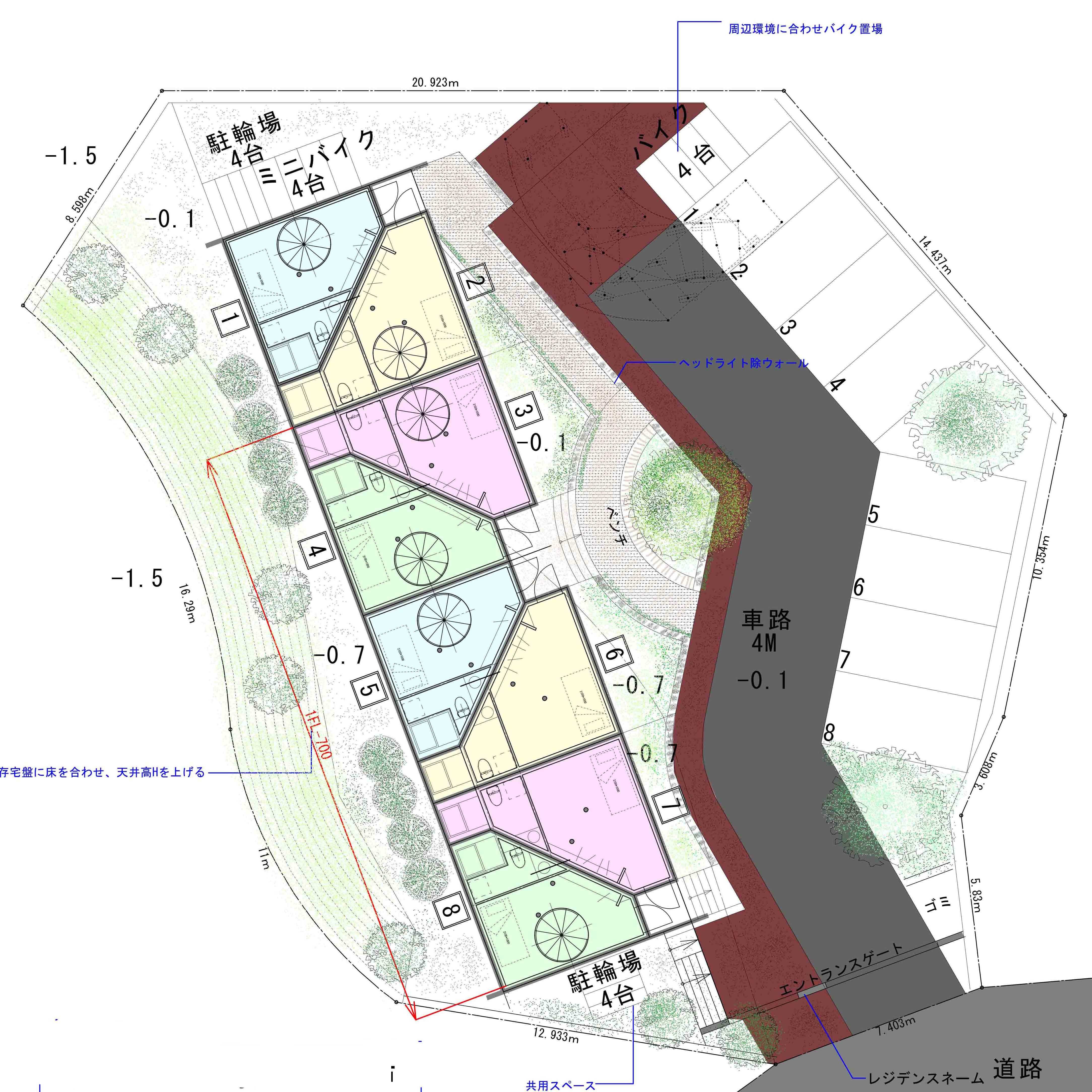
先日、某コンペサイトで1等を獲得した集合住宅です。
1・2階を三角形にし上下階ともに南北に大開口を設け、
道路側はアパート感を減らした外観としております。



2019.03.15
木造耐火構造の老人ホームの建築現場見学です。
1・2階までをコンクリート構造とし3階以上を木造(2×4)としています
それにより建物の重さが軽くなり工事費減少や数値に見えない快適性(介護者の疲れ軽減や高気密による断熱性能)が良くなる様です。
残念ながら2×4材の木造は仕上げ材には出来ず隠れてしまいます。
施工中の現場が一番木の感じが良いかも・・

2019.03.05
3年前に竣工した江ノ島のマンションです。
海沿いのまさにサーフ天国な立地です。
白いタイルとバルコニー裏は木調塗装でシンプルな外観です。
足元はコンクリート打放し杉板型枠です。

2019.02.20
狭小三角地のプラン経過,グーグルマップから所得した俯瞰図にパースを合成してみました。
スケール感は把握できそう。

2019.02.04
狭小三角地のプラン経過
2019.01.27
商業施設のプロジェクト
狭小三角地と傾斜地というアクロバットな土地です。
こういう土地はやる気が出てくる。

2019.01.20
チェーンの定食屋にて
オーダーから勘定までオール無人化にて対応する。
多言語化対応で外国人も安心。
これは飲食店レイアウトの自由度UPで内装革新がありそうな


2019.01.10
年始に施主様に伺った時の写真
素敵なオブジェ、ざっくり床に置いてがGOODです。
2019.01.07
本年もよろしくお願いします
年賀状写真です。ハウスメーカーさん依頼の新しい木材の利用方法について
木材をユニット使いした空間提案です。
積み木にして2019の文字を作ってみました。
あと事務所からみた多摩川と富士山です。
中央は東急田園都市線の二子玉川駅。
二子玉川駅は多摩川の上にあるんですよ。(正確には一部が突き出してます)